店舗・事務所
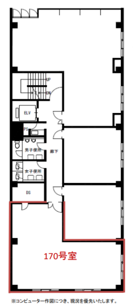
第5藤井ビル 0170号室
契約面積
19.76坪
(-㎡)
賃料
217,360円
(その他費用については下部詳細をご覧ください)
札幌市中央区南1条西2丁目4番地1
地下鉄「大通」駅徒歩1分
おすすめポイント!
🌸春の店舗・事務所応援キャンペーン実施中!🌸
☆大通駅からのアクセス良好 !
☆現場事務所相談可能!(短期契約の場合の諸条件についてはお問い合わせください)
☆大通駅からのアクセス良好 !
☆現場事務所相談可能!(短期契約の場合の諸条件についてはお問い合わせください)
ACCESS
交通アクセス
お気軽にお問合せください。
COST
コスト
保証金(契約時)
1,185,600円
賃料(月額)
217,360円
共益費(月額)
39,160円
冷暖房基本料(月額)
39,160円
電気基本料(月額)
月額 18,920円 + 使用料検針
水道基本料(月額)
-
諸経費(月額)
防火設備点検費:550円
町内会費(月額)
-
看板書替料(契約時)
55,000円
駐車場(料金)
-
※初期費用は、保証金・賃料・共益費・看板書替料・初回保証委託料が発生します。
※冷暖房を使用の際、別途運転に伴う電気料金が発生します。
※看板書換料は、1階総合案内板・EV内・郵便ポストの施工になります。
※保証会社:USEN家賃保証Prime(初回保証委託料:月額固定費の150%)
※契約事務手数料として賃料の10%を頂戴いたします。(最低金額22,000円)
※冷暖房を使用の際、別途運転に伴う電気料金が発生します。
※看板書換料は、1階総合案内板・EV内・郵便ポストの施工になります。
※保証会社:USEN家賃保証Prime(初回保証委託料:月額固定費の150%)
※契約事務手数料として賃料の10%を頂戴いたします。(最低金額22,000円)
INFORMATION
名称
第5藤井ビル
住所
札幌市中央区南1条西2丁目4番地1
構造
鉄骨鉄筋コンクリート造
敷地面積
94.87坪(313.65m³)
延床面積
975.58坪(3.225.06m³)
竣工
1973年7月
階数
6階0170号室
業種
事務所
業態
事務所
機械警備
有(綜合警備保障)
駐車場
無
設備
エレベーター1基
引渡
2026年4月15日予定
備考
定期借家契約2年、 水回り引込不可、原則事務所限定、保証会社加入必須
特典情報
🌸春の店舗・事務所応援キャンペーン実施中!🌸
2月・3月のお申込みで、下記の特典をプレゼント!
【契約者特典】
①仲介手数料無料
②スポーツ観戦チケットプレゼント ※1 ※2
③賃料1か月無料
※1 ご成約後のお渡しとなります。
※2 先着順となりますので、ご希望のチケットがお選びいただけない場合がございます。予めご了承ください。
【紹介者特典】 ご紹介いただいたお客様がご成約で、以下特典をプレゼント!
〇商品券5万円分プレゼント
✨仲介業者様への特典もご用意しております!✨
詳細は藤井ビルテナント事業部≪TEL:011-231-4041≫までお問い合わせください。
お問い合わせ・申し込み
お電話でのお問い合わせ(テナント事業部)
平日10:00~17:00/土曜10:00~17:00
日祝 休業
賃貸借申込受付票





